iQ Makelaars Feedbackcompany
9.5 10
252 reviews
9,2 10
78 beoordelingen
 
ALMELO, Bornerbroeksestraat 336
 

Bornerbroeksestraat 336 ALMELO

Vraagprijs € 469.000,-
k.k.
  iQ Makelaars ALMELO, Bornerbroeksestraat Verkocht
Vraagprijs € 469.000,-
k.k.
Bornerbroeksestraat 336 ALMELO
  • TypeVrijstaand
  • Woonoppervlakte150 m²
  • Perceelgrootte695 m²
  • Slaapkamers3
  • Aangeboden sinds12-11-2021
  • Beschikbaarheid In overleg
Vraag bezichtiging aan

Omschrijving

Deze unieke energiezuinige vrijstaande woning met slaap- en badkamer op de begane grond en een multifunctionele separate ruimte van 53m² met vele mogelijkheden is gelegen in de wijk het Nijrees. Deze woning ligt aan een doodlopende weg nabij de belangrijkste uitvalwegen zoals de A35 en A1. Tevens zit u ook dichtbij het Nijreesbos waar u geweldig kan wandelen/fietsen.

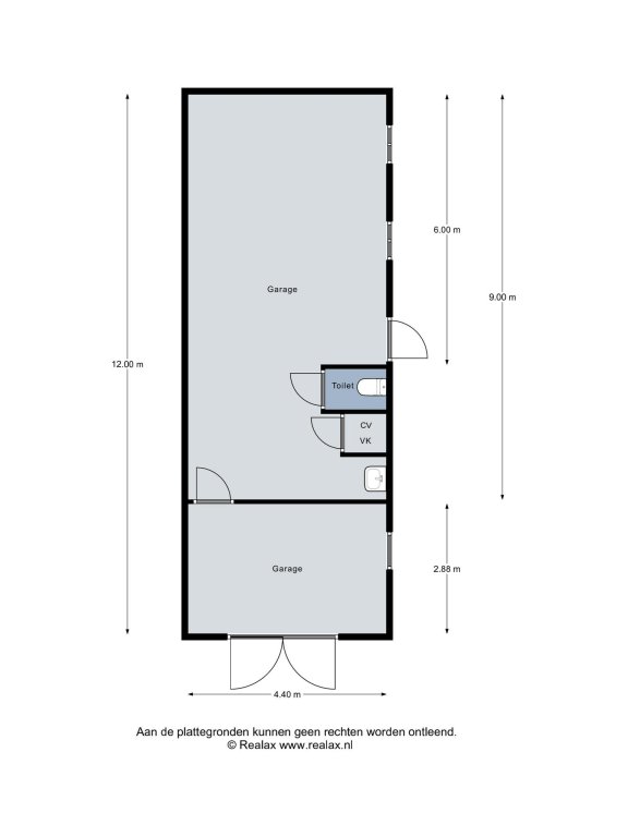
De woning is van het jaar 2004 en het bijgebouw biedt veel mogelijkheden, deze is voorzien van een eigen cv installatie, isolatie, 22 zonnepanelen, toilet en een eigen oprit. De ruimte kan als hobby- of werkruimte gebruikt worden. Tevens biedt het ook mogelijkheden voor mantelzorg.

Indeling:
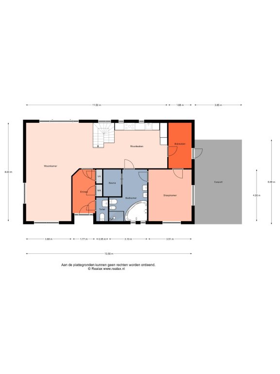
Begane grond: Entree, hal met modern toilet en urinoir. Ruime woonkamer voorzien van een houten grenen vloer met toegang tot een open keuken. De open keuken is voorzien van alle inbouwapparatuur zoals een kookplaat, koelkast, vaatwasser en afzuigkap. Op de begane grond is tevens een slaapkamer en badkamer gesitueerd. Badkamer is voorzien van een hoekbad, douchecabine, tweede toilet, bidet, dubbele wastafel, vloerverwarming en een sauna. De ruime slaapkamer op de begane grond biedt toegang tot de badkamer. Aansluitend is de bijkeuken met toegang tot de carport en tuin.

1e verdieping:
Riante overloop voorzien van een zeer lichte vide, twee slaapkamers voorzien van een dakkapel en dakramen.

Bijzonderheden:
-Bouwjaar: 2004
-Perceelgrootte: 695m²
-Woonoppervlakte: 150m²
-Multifunctionele separate ruimte: 53m²
-Inhoud 577m³
-De woning is compleet geïsoleerd en voorzien van luchtverwarming:
-Ruime bedrijfsruimte met veel mogelijkheden.
-22 zonnepanelen
-Riante carport rechts van de woning
-Dichtbij de uitvalswegen

Meer

Neem contact op

iQ Makelaars Kantoor Almelo
Danny Mulder
Twentepoort Oost 34
7609 RG Almelo

T  0546 - 305 301
E  Almelo@iQMakelaars.nl

Specificates

Bouw

  • Soort Woningen
  • Type Vrijstaand
  • Bouwjaar 2004

Algemeen

  • Beschikbaarheid In overleg

Energie

  • Energielabel A
  • CV-ketel warmwater Ja
  • Aanwezige isolatie Dakisolatie, muurisolatie, vloerisolatie, glasisolatie

Indeling

  • Slaapkamers 3
  • Tuin Ja

Voorziening

  • Parkeerplaats Ja
  • Zonnepanelen Ja

Afmetingen

  • Woonoppervlakte 150 m²
  • Perceeloppervlakte 695 m²
  • Woninginhoud 577 m³
  • Tuin oppervlakte 500 m²
Meer

Afbeeldingen

 
 
 
 
 
 
 
 
 
 
 
 
 
 
 
 
 
 
 
 
 
 
 
 
 
 
 
 
 
 
 

Plattegrond

  Pand
  Pand
  Pand
  Pand
  Pand
  Pand

Vraag bezichtiging aan

Vergelijkbaar aanbod

Verkocht
ALMELO
Leemslagenweg 39
   € 475.000,- k.k.
Bekijk pand
Verkocht
ALMELO
Grand Canal 3
   € 469.000,- k.k.
Bekijk pand

Wat is jouw huis waard?

Gratis rapport iQ Makelaars Leadtool

Contact

iQ Makelaars Enschede
Roessinghsbleekweg 21,
7522 AH Enschede

E: enschede@iqmakelaars.nl
T: 053 - 760 16 00
Whatsapp +31 6 135 274 00

053 - 760 16 00

Volg ons

 

Onze beoordelingen

Onze klanten beoordelen ons met een 9,3 / 10. Elke klant met een unieke ervaring.

Bekijk al onze beoordelingen