iQ Makelaars Feedbackcompany
9.5 10
252 reviews
9,2 10
78 beoordelingen
 
EDE, De Gasperisingel 7
 

De Gasperisingel 7 EDE

Vraagprijs € 319.000,-
k.k.
  iQ Makelaars EDE, De Gasperisingel Verkocht
Vraagprijs € 319.000,-
k.k.
De Gasperisingel 7 EDE
  • TypeTussenwoning
  • Woonoppervlakte108 m²
  • Perceelgrootte159 m²
  • Slaapkamers4
  • Aangeboden sinds29-11-2021
  • Beschikbaarheid In overleg
Vraag bezichtiging aan

Omschrijving

In de geliefde wijk Rietkampen in Ede vinden we deze leuke tussenwoning met fraai aangelegde tuin, 3 slaapkamers een grote zolderverdieping waar met gemak nog minimaal 1 slaapkamer te realiseren is.

De woning is gelegen op een steenworp afstand van winkelcentrum “Stadspoort” en de A12

De Gasperisingel 7 is nu te koop.

Indeling:

Benedenverdieping:
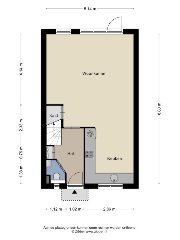
Via de voordeur komen we in de hal waar de meterkast, het toilet en de trap naar de eerste verdieping zich bevinden.

Vervolgens bereiken we de gezellige tuingerichte woonkamer (5,14 meter breed) met open keuken aan de voorzijde van de woning. In de kamer bevindt zich een grote voorraadkast. Op de gehele benedenverdieping ligt een parketvloer.

Eerste verdieping:
Deze woning heeft op de eerste verdieping 3 goed bemeten slaapkamers en een badkamer voorzien van een douche, ligbad, 2e toilet en een wastafel.
Alle slaapkamers zijn voorzien van een laminaatvloer.

De tweede verdieping:
Naast de opstelplaatsen van de wasmachine en cv-installatie is hier nog voldoende ruimte om een 4e (grote) slaapkamer en /of een ruime thuiswerkplek te realiseren. Daarnaast is er voldoende opbergruimte voor uw spullen in de aanwezige kastruimte en op de bergzolder/vliering.

Tuin.
Zowel de verzorgde voor- als achtertuin zijn netjes en verzorgd aangelegd met diverse zitjes om in de zon of in de schaduw te gaan zitten.
In de achtertuin bevindt zich een tuinhuis. Deze is nu ingericht als relaxruimte met een fraaie bar, een grote jacuzzi en een sauna.

De Gasperisingel is een rustige straat met alleen bestemmingsverkeer. Parkeren is geregeld via vergunningen.
Scholen en kinderopvang bevinden zich in de directe nabijheid. Winkelcentrum Stadspoort ligt op loopafstand. De A12 (richting Arnhem of Utrecht) is binnen een paar minuten te bereiken. Verder liggen in de directe nabijheid een grote moderne Pathé bioscoop en diverse eetgelegenheden.

Bijzonderheden / Kenmerken:

- Ruime eengezinswoning (± 109m2 vloeroppervlakte), bouwjaar 1992.
- Woning met mogelijkheden.
- Gelegen op loopafstand van winkelcentrum “Stadspoort”.
- Tuingerichte woonkamer met open keuken.
- Grote, nog in te delen, zolderverdieping.
- Tuinhuis met bar, jacuzzi en sauna.
- Cv-ketel (2016), lease
- Energielabel B.
- Overdracht op korte termijn mogelijk.


Interesse in deze woning? Maak snel een afspraak voor een individuele bezichtiging.

Meer

Neem contact op

iQ Makelaars Kantoor Almelo
Cees van Holland
Twentepoort Oost 34
7609 RG Almelo

T  0546 - 305 301
E  Almelo@iQMakelaars.nl

Specificates

Bouw

  • Soort Woningen
  • Type Tussenwoning
  • Bouwjaar 1994

Algemeen

  • Beschikbaarheid In overleg

Energie

  • Energielabel B
  • CV-ketel Combi
  • CV-ketel brandstof Gas
  • CV-ketel warmwater Ja
  • Aanwezige isolatie Dakisolatie, spouwisolatie, muurisolatie, vloerisolatie, glasisolatie

Indeling

  • Slaapkamers 4
  • Tuin Ja
  • Tuin ligging Noord

Voorziening

  • Parkeerplaats Ja

Afmetingen

  • Woonoppervlakte 108 m²
  • Perceeloppervlakte 159 m²
  • Woninginhoud 387 m³
  • Tuin oppervlakte 66 m²
Meer

Afbeeldingen

 
 
 
 
 
 
 
 
 
 
 
 
 
 
 
 
 
 
 
 
 
 
 
 
 
 
 
 
 
 
 

Plattegrond

  Pand
  Pand
  Pand
  Pand
  Pand
  Pand
  Pand
  Pand
  Pand
  Pand

Vraag bezichtiging aan

Vergelijkbaar aanbod

Verkocht
ENSCHEDE
Herikebrink 67
   € 325.000,- k.k.
Bekijk pand
Verkocht
ENSCHEDE
Emmastraat 61
   € 320.000,- k.k.
Bekijk pand
Verkocht
ENSCHEDE
Magnoliastraat 10
   € 325.000,- k.k.
Bekijk pand

Wat is jouw huis waard?

Gratis rapport iQ Makelaars Leadtool

Contact

iQ Makelaars Enschede
Roessinghsbleekweg 21,
7522 AH Enschede

E: enschede@iqmakelaars.nl
T: 053 - 760 16 00
Whatsapp +31 6 135 274 00

053 - 760 16 00

Volg ons

 

Onze beoordelingen

Onze klanten beoordelen ons met een 9,3 / 10. Elke klant met een unieke ervaring.

Bekijk al onze beoordelingen