iQ Makelaars Feedbackcompany
9.5 10
252 reviews
9,2 10
78 beoordelingen
 
ENSCHEDE, Burgemeester Stroinkstraat 287
 

Burgemeester Stroinkstraat 287 ENSCHEDE

Vraagprijs € 545.000,-
k.k.
Vraagprijs € 545.000,-
k.k.
Burgemeester Stroinkstraat 287 ENSCHEDE
  • Type2-onder-1-kap
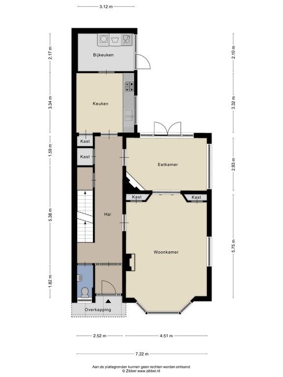
  • Woonoppervlakte146 m²
  • Perceelgrootte2299 m²
  • Slaapkamers3
  • Aangeboden sinds22-02-2023
  • Beschikbaarheid In overleg
Vraag bezichtiging aan

Omschrijving

Karakteristieke jaren ‘30 woning met prachtige vrije ligging en uitzicht over de weilanden. Deze twee-onder-één kapwoning heeft prachtige originele details, hoge plafonds en glas-in-lood ramen. De woning beschikt o.a. over een grote achtertuin met dubbele paardenbox, berging en carport. De twee extra kavels zorgen voor een perceel oppervlakte van maar liefst 2299 vierkant meter. Op korte afstand bevinden zich Universiteit Twente, het Business & Science Park en diverse sportvoorzieningen.

Indeling
Begane grond:
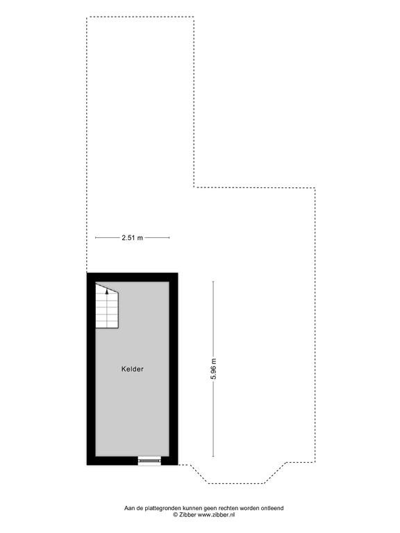
Entree/hal, vestibule met glas in lood ramen, royale hal, toilet met fontein, ruime living met houten vloeren in voor- en achterkamer, houtkachel, kamer en suite deuren, tweede schouw en openslaande deuren naar de tuin, provisiekelder, meterkast, keuken voorzien van 4-pits gasstel en afzuigkap, voorraadkast, bijkeuken met aansluitingen voor wasmachine en droger.

Eerste verdieping:
Overloop, 3 slaapkamers, waarvan 2 ruime kamers welke zijn voorzien van inbouwkasten, badkamer (volledig vernieuwd in 2022) voorzien van wastafel, ligbad, douchecabine en toilet, vaste trap naar…
Tweede verdieping:
CV-opstelling en mogelijkheid voor extra slaapkamer.

Bijzonderheden:
- Bouwjaar: 1928;
- CV ketel, Remeha Quinta 2006;
- Woonoppervlakte: 146 m2;
- Perceeloppervlakte: 2299 m2;
- Inhoud woning: 634 m3;
- Volledig vernieuwde badkamer(2022)
- Ruime kavel met prachtig uitzicht.
Speciaal voor deze woning zijn er kijkdagen ingepland, zo kunt u laagdrempelig in een door uzelf te reserveren tijdslot van ca. 30 minuten uitgebreid bezichtigen.

Interesse? Wij nodigen u graag uit voor een bezichtiging.

Meer

Neem contact op

iQ Makelaars Kantoor Enschede
Danny Mulder
Roessinghsbleekweg 21,
7522 AH  Enschede

T  053 - 760 1600
E  Enschede@iQMakelaars.nl

Specificates

Bouw

  • Soort Woningen
  • Type 2-onder-1-kap
  • Bouwjaar 1928

Algemeen

  • Beschikbaarheid In overleg

Energie

  • Energielabel E
  • CV-ketel Combi
  • CV-ketel eigendom Ja
  • CV-ketel brandstof Gas
  • CV-ketel bouwjaar 2006
  • CV-ketel warmwater Ja
  • Aanwezige isolatie Dakisolatie, glasisolatie

Indeling

  • Slaapkamers 3
  • Tuin Ja
  • Tuin ligging Zuidwest

Voorziening

  • Parkeerplaats Ja

Afmetingen

  • Woonoppervlakte 146 m²
  • Perceeloppervlakte 2299 m²
  • Woninginhoud 634 m³
Meer

Afbeeldingen

 
 
 
 
 
 
 
 
 
 
 
 
 
 
 
 
 
 
 
 
 
 
 
 
 
 
 
 
 
 
 
 
 
 
 
 
 
 

Plattegrond

  Pand
  Pand
  Pand
  Pand
  Pand
  Pand
  Pand
  Pand
  Pand
  Pand
  Pand
  Pand

Vraag bezichtiging aan

Vergelijkbaar aanbod

Verkocht
ENSCHEDE
Julie de Graaglaan 67
   € 550.000,- k.k.
Bekijk pand
Verkocht OVB
ENSCHEDE
Bosuilstraat 16
   € 550.000,- k.k.
Bekijk pand

Wat is jouw huis waard?

Gratis rapport iQ Makelaars Leadtool

Contact

iQ Makelaars Enschede
Roessinghsbleekweg 21,
7522 AH Enschede

E: enschede@iqmakelaars.nl
T: 053 - 760 16 00
Whatsapp +31 6 135 274 00

053 - 760 16 00

Volg ons

 

Onze beoordelingen

Onze klanten beoordelen ons met een 9,3 / 10. Elke klant met een unieke ervaring.

Bekijk al onze beoordelingen