iQ Makelaars Feedbackcompany
9.5 10
252 reviews
9,2 10
78 beoordelingen
 
ENSCHEDE, Esmarkelaan 484
 

Esmarkelaan 484 ENSCHEDE

€ 300.000,-
k.k.
  iQ Makelaars ENSCHEDE, Esmarkelaan Verkocht
€ 300.000,-
k.k.
Esmarkelaan 484 ENSCHEDE
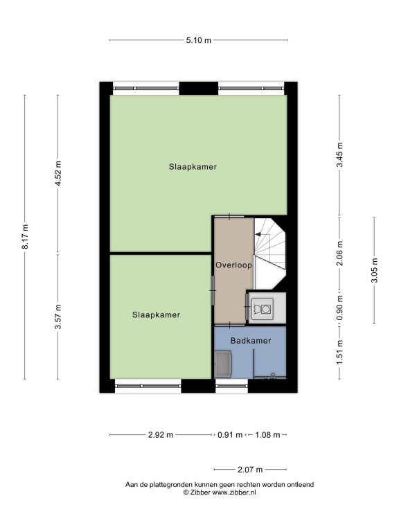
  • TypeEindwoning
  • Woonoppervlakte82 m²
  • Perceelgrootte122 m²
  • Slaapkamers2
  • Aangeboden sinds19-07-2022
  • Beschikbaarheid In overleg
Vraag bezichtiging aan

Omschrijving

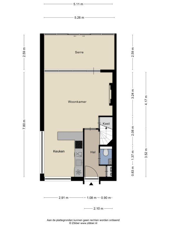
Uiterst modern vormgegeven woonhuis met een zonnige tuin op het westen en een fraaie aangebouwde serre. De afwerking van wanden, vloeren en de heerlijke lichtinval door de ramen rondom, dragen bij tot een zeer prettig en licht leefklimaat in deze hoekwoning. De ligging is zeer gunstig, in de woonwijk ‘Eschmarke’ aan de rand van het groene buitengebied met voorzieningen, scholen en winkels op loopafstand.

De woning is in 2021 volledig gemoderniseerd en voorzien van een nieuwe badkamer, toilet en keuken, comfortabele vloerverwarming en een fraaie serre.

Indeling:

Begane grond: volledig voorzien van vloerverwarming
- Entree/hal, voorzien van voordeur. De ruimte heeft een meterkast.
- Moderne luxe toiletruimte (2021), voorzien van hangend toilet en fonteintje.
- Lichte woonkamer met vloerverwarming.
- Open moderne zeer luxe keuken (2021), voorzien van diverse inbouwapparatuur, met o.a. inductie kookplaat, combi-oven, koel-vriescombinatie, afzuigkap en vaatwasser.

1e verdieping:
- 2-tal ruime slaapkamers (voorheen 3 slaapkamers)
- Overloop.
- Moderne luxe badkamer (2021), voorzien van inloopdouche, wastafelmeubel en vloerverwarming.
- Wasruimte, voorzien van wasmachine- en drogeraansluiting en opstelplaats voor de HR combi-ketel.

Tuin
Onderhoudsvriendelijk tuin met af te sluiten bijzonder fraaie serre en achterom.

Je bent van harte welkom!

Meer

Neem contact op

iQ Makelaars Kantoor Enschede
Martin Grave
Roessinghsbleekweg 21,
7522 AH  Enschede

T  053 - 760 1600
E  Enschede@iQMakelaars.nl

Specificates

Bouw

  • Soort Woningen
  • Type Eindwoning
  • Bouwjaar 1998

Algemeen

  • Beschikbaarheid In overleg

Indeling

  • Slaapkamers 2
  • Tuin Ja
  • Tuin ligging West

Afmetingen

  • Woonoppervlakte 82 m²
  • Perceeloppervlakte 122 m²
  • Woninginhoud 324 m³

Energie

  • CV-ketel Combi
  • CV-ketel eigendom Ja
  • CV-ketel brandstof Gas
  • CV-ketel bouwjaar 2015
  • CV-ketel warmwater Ja
  • Aanwezige isolatie Dakisolatie, spouwisolatie, muurisolatie, vloerisolatie, glasisolatie
Meer

Afbeeldingen

 
 
 
 
 
 
 
 
 
 
 
 
 
 
 
 
 
 
 
 
 
 
 
 
 
 
 
 

Plattegrond

  Pand
  Pand
  Pand
  Pand
  Pand
  Pand

Vraag bezichtiging aan

Vergelijkbaar aanbod

ENSCHEDE
De Klomp 22
   € 299.000,- k.k.
Bekijk pand
ENSCHEDE
Kuipersdijk 213
   € 299.000,- k.k.
Bekijk pand

Wat is jouw huis waard?

Gratis rapport iQ Makelaars Leadtool

Contact

iQ Makelaars Enschede
Roessinghsbleekweg 21,
7522 AH Enschede

E: enschede@iqmakelaars.nl
T: 053 - 760 16 00
Whatsapp +31 6 135 274 00

053 - 760 16 00

Volg ons

 

Onze beoordelingen

Onze klanten beoordelen ons met een 9,3 / 10. Elke klant met een unieke ervaring.

Bekijk al onze beoordelingen