iQ Makelaars Feedbackcompany
9.5 10
252 reviews
9,2 10
78 beoordelingen
 
ENSCHEDE, Hengelosestraat 277
 

Hengelosestraat 277 ENSCHEDE

Vraagprijs € 575.000,-
k.k.
Vraagprijs € 575.000,-
k.k.
Hengelosestraat 277 ENSCHEDE
  • TypeVrijstaand
  • Woonoppervlakte164 m²
  • Perceelgrootte425 m²
  • Slaapkamers4
  • GarageJa
  • Aangeboden sinds11-03-2026
  • Beschikbaarheid In overleg
Vraag bezichtiging aan

Omschrijving

Het is met groot enthousiasme dat wij u deze sfeervolle vrijstaande woning met mogelijkheid tot een extra woonplek in de achtertuin presenteren, gelegen aan de Hengelosestraat in Enschede. Het betreft een bestaand bouwwerk uit 1923 met een woonoppervlak van 164m²(verdeeld over de hoofdwoning en het gebouw achter in de tuin) en een perceeloppervlakte van 425m². Ondanks de respectabele leeftijd, is de woning in goede staat van onderhoud, zowel binnen als buiten. Er zijn vijf kamers, waarvan vier slaapkamers. Het gebouw achter in de tuin is grotendeels klaargemaakt alleen de afwerking en installatie moet nog gedaan worden. Het is voorzien van een woonkamer met keuken, badkamer en slaapkamer.

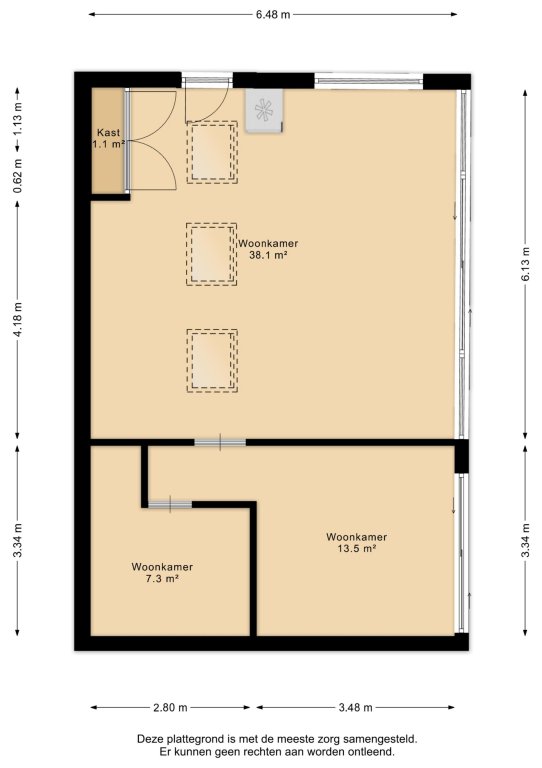
Op de begane grond vindt u een sfeervolle woonkamer van 40m² met veel natuurlijk licht. De open keuken is van alle gemakken voorzien en complementeert de leefruimte. Ook bevindt zich op deze verdieping een slaapkamer.

De verdiepingen van deze woning bieden ruimte aan drie extra slaapkamers, elk met een eigen karakter en afmeting. In de badkamer, voorzien van een ligbad, toilet, douche en wastafel, kunt u zich heerlijk ontspannen na een drukke werkdag.

De woning beschikt zowel aan de voor- als achterzijde over een tuin. De achtertuin is goed onderhouden en biedt genoeg ruimte voor tuinmeubilair en gezellige zomerbarbecues. Ook beschikt het huis over een geïntegreerde, stenen garage met een parkeercapaciteit voor één auto.

Parkeren is hier geen probleem; er is een ruime openbare parkeergelegenheid en een geïntegreerde garage.

- Open keuken
- Vier slaapkamers
- Centrale ligging
- Mogelijkheid tot dubbele bewoning

Daarbij is het natuurlijk ook goed om te vermelden dat er centrale verwarming aanwezig is, en dat er een optimaal woonklimaat wordt gerealiseerd door de aanwezigheid van dubbel glas en natuurlijke ventilatie garant staat voor een gezond binnenklimaat.

Om het plaatje compleet te maken, wordt deze woning aangeboden voor de aantrekkelijke prijs van €575.000,- k.k. Bent u nieuwsgierig geworden naar de mogelijkheden van dit karakteristieke woonhuis? Dan nodigen wij u van harte uit voor een bezichtiging. Laat u verrassen door de sfeer en de ruimte van deze woning en maak een afspraak met onze makelaar. Wie weet is dit het huis waar u altijd al van heeft gedroomd.

Meer

Neem contact op

iQ Makelaars Kantoor Enschede
Danny Mulder
Roessinghsbleekweg 21,
7522 AH  Enschede

T  053 - 760 1600
E  Enschede@iQMakelaars.nl

Specificates

Bouw

  • Soort Woningen
  • Type Vrijstaand
  • Bouwjaar 1923

Algemeen

  • Beschikbaarheid In overleg

Energie

  • Energielabel E
  • CV-ketel Combi
  • CV-ketel eigendom Ja
  • CV-ketel brandstof Gas
  • CV-ketel warmwater Ja
  • Aanwezige isolatie Glasisolatie

Indeling

  • Slaapkamers 4
  • Garage Ja
  • Tuin Ja
  • Tuin ligging Zuidwest

Afmetingen

  • Woonoppervlakte 164 m²
  • Perceeloppervlakte 425 m²
  • Woninginhoud 550 m³
  • Tuin oppervlakte 250 m²
Meer

Afbeeldingen

 
 
 
 
 
 
 
 
 
 
 
 
 
 
 
 
 
 
 
 
 
 
 
 
 
 
 
 
 
 
 

Plattegrond

  Pand
  Pand
  Pand
  Pand
  Pand
  Pand
  Pand
  Pand

Vraag bezichtiging aan

Wat is jouw huis waard?

Gratis rapport iQ Makelaars Leadtool

Contact

iQ Makelaars Enschede
Roessinghsbleekweg 21,
7522 AH Enschede

E: enschede@iqmakelaars.nl
T: 053 - 760 16 00
Whatsapp +31 6 135 274 00

053 - 760 16 00

Volg ons

 

Onze beoordelingen

Onze klanten beoordelen ons met een 9,3 / 10. Elke klant met een unieke ervaring.

Bekijk al onze beoordelingen