iQ Makelaars Feedbackcompany
9.5 10
252 reviews
9,2 10
78 beoordelingen
 
ENSCHEDE, Jacob van Lennepstraat 27
 

Jacob van Lennepstraat 27 ENSCHEDE

Vraagprijs € 489.000,-
k.k.
Vraagprijs € 489.000,-
k.k.
Jacob van Lennepstraat 27 ENSCHEDE
  • TypeEindwoning
  • Woonoppervlakte123 m²
  • Perceelgrootte139 m²
  • Slaapkamers4
  • GarageJa
  • Aangeboden sinds20-11-2025
  • Beschikbaarheid In overleg
Vraag bezichtiging aan

Omschrijving

Deze zeer nette instapklare eindwoning met uitbouw, garage en fraaie nieuwe aangelegde tuin bieden wij u nu aan. De woning beschikt over drie ruime slaapkamers en de badkamer en keuken zijn nog in zeer goede staat. De woning heeft een parkeerplek met garage aan de achterkant wat ideaal is om 1 of 2 auto's kwijt te kunnen. Achter de garages bevindt zich een grote gezamenlijke plas waar u tijdelijk iets neer kan zetten om schoon te maken of dergelijke.

De ligging is zeer gunstig in Roombeek, één van de meest geliefde wijken van Enschede, met alle gewenste voorzieningen in de buurt, bovendien op 5 minuten fietsafstand van de binnenstad en het groene buitengebied. Daarnaast is er een korte verbinding richting de snelweg. Kortom: deze ‘parel’ aan de Van Lennepstraat biedt u alle comfort en veel leefplezier. De woning ligt aan een zeer rustige straat.

Indeling:
Begane grond
Bij binnenkomst komt u in de hal met trapopgang, toilet en toegang tot de woonkamer. De woonkamer is voorzien van een pvc vloer en voelt door de ruime uitbouw zeer ruim aan. De half open keuken aan de voorzijde is voorzien van diverse inbouwapparatuur.

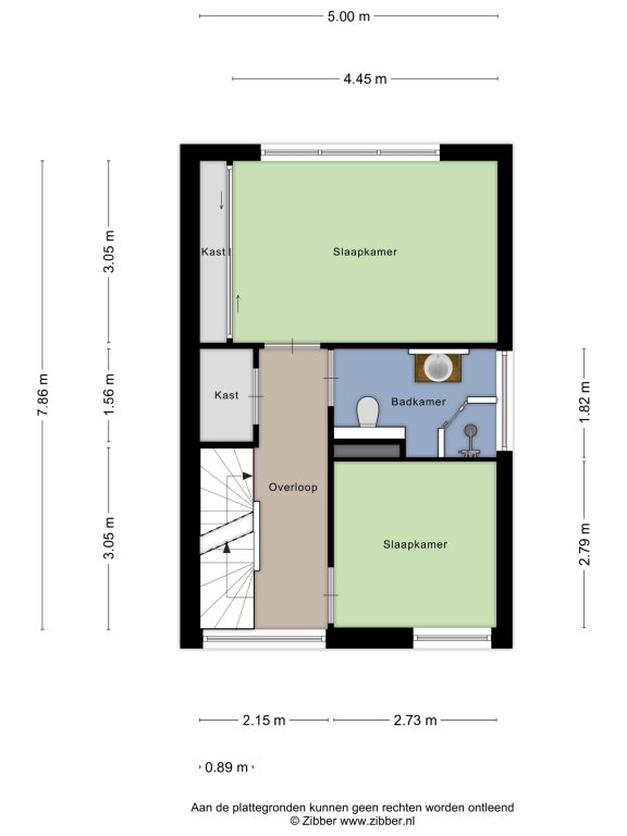
1e verdieping:
Op de eerste verdieping treft u twee ruime slaapkamers waarvan de grote slaapkamer een vaste kast heeft aan. Beide kamers zijn voorzien van screens. Via de gang is tevens toegang tot een ruime kast en de badkamer welke is voorzien van een inloopdouche, toilet en wastafel.

2e verdieping:
Ruime overloop met opstelplaats voor de wasmachine en droger en toegang tot de derde zeer ruime slaapkamer.

Tuin:
De tuin is dit jaar nieuw aangelegd met een zeer mooie overkapping. Aan de achterzijde van de woning vindt u ook nog de garage en een plek om de auto neer te zetten. Aan de achterkant van de woning bevind zich ook een mandelige toegangsweg voor alle garages en woningen.

Bijzonderheden:
Woonoppervlakte: 123m²
Inhoud: 437m³
Bouwjaar: 2005
Woning boven en beneden voorzien van screens
Energielabel A
Volledig geïsoleerd.

Meer

Neem contact op

iQ Makelaars Kantoor Enschede
Danny Mulder
Roessinghsbleekweg 21,
7522 AH  Enschede

T  053 - 760 1600
E  Enschede@iQMakelaars.nl

Specificates

Bouw

  • Soort Woningen
  • Type Eindwoning
  • Bouwjaar 2005

Algemeen

  • Beschikbaarheid In overleg

Energie

  • Energielabel A
  • CV-ketel Combi
  • CV-ketel eigendom Ja
  • CV-ketel brandstof Gas
  • CV-ketel bouwjaar 2005
  • CV-ketel warmwater Ja
  • Aanwezige isolatie Dakisolatie, spouwisolatie, muurisolatie, vloerisolatie, glasisolatie

Indeling

  • Slaapkamers 4
  • Garage Ja
  • Tuin Ja

Voorziening

  • Parkeerplaats Ja

Afmetingen

  • Woonoppervlakte 123 m²
  • Perceeloppervlakte 139 m²
  • Woninginhoud 437 m³
  • Tuin oppervlakte 50 m²
Meer

Afbeeldingen

 
 
 
 
 
 
 
 
 
 
 
 
 
 
 
 
 
 
 
 
 
 
 
 
 
 
 
 
 
 

Plattegrond

  Pand
  Pand
  Pand
  Pand
  Pand
  Pand
  Pand
  Pand
  Pand
  Pand

Vraag bezichtiging aan

Vergelijkbaar aanbod

Verkocht
ENSCHEDE
Raiffeisenstraat 15
   € 480.000,- k.k.
Bekijk pand

Wat is jouw huis waard?

Gratis rapport iQ Makelaars Leadtool

Contact

iQ Makelaars Enschede
Roessinghsbleekweg 21,
7522 AH Enschede

E: enschede@iqmakelaars.nl
T: 053 - 760 16 00
Whatsapp +31 6 135 274 00

053 - 760 16 00

Volg ons

 

Onze beoordelingen

Onze klanten beoordelen ons met een 9,3 / 10. Elke klant met een unieke ervaring.

Bekijk al onze beoordelingen