iQ Makelaars Feedbackcompany
9.5 10
252 reviews
9,2 10
78 beoordelingen
 
ENSCHEDE, Schreursweg 72
 

Schreursweg 72 ENSCHEDE

Vraagprijs € 259.000,-
k.k.
Vraagprijs € 259.000,-
k.k.
Schreursweg 72 ENSCHEDE
  • TypeHoekwoning
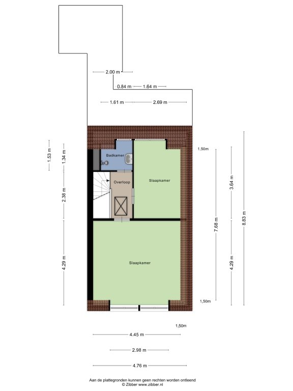
  • Woonoppervlakte89 m²
  • Perceelgrootte150 m²
  • Slaapkamers2
  • Aangeboden sinds13-02-2026
  • Beschikbaarheid In overleg
Vraag bezichtiging aan

Omschrijving

Ben je op zoek naar een huis met karakter en sfeer in een rustige buurt? Deze hoekwoning aan de Schreursweg in Enschede heeft het allemaal. Deze woning heeft de charme van een jaren '20 woning. De woning heeft een woonoppervlakte van 89m², een open woon-en eetkamer, 2 slaapkamers en een zonnige tuin aan de voor- en achterkant.

De Schreursweg is een rustige straat in een woonwijk. In de omgeving vind je speeltuinen, scholen en supermarkten - alles wat je nodig hebt voor het dagelijks leven. Het stadscentrum van Enschede ligt op fietsafstand en er zijn goede openbaar vervoer verbindingen.

Algemene kenmerken van de woning:
- Woonoppervlakte: 89m²
- 2 slaapkamers
- Bouwjaar: 1928
- Sfeervolle jaren '20 details
- Goed onderhouden
- Energieklasse: E
- Verwarming: airconditioning

Begane grond
Bij binnenkomst wordt je meteen verrast door een ruime hal die toegang biedt tot de royale woonkamer met open keuken voorzien van diverse inbouwapparatuur. De woonkamer is zeer ruim waardoor er tal van mogelijkheden zijn. Aan de achterzijde zit een berging met wasmachineaansluiting. Ook is de toilet onder de trap gesitueerd.

Verdieping
Op de eerste verdieping bevinden zich 2 slaapkamers en een badkamer met douche en wastafel.

Er is voldoende openbare parkeergelegenheid voor de deur.

Ben je geïnteresseerd in deze sfeervolle hoekwoning aan de Schreursweg in Enschede? Maak snel een afspraak voor een bezichtiging en ervaar zelf de charme van deze woning. Wacht niet te lang, want dit pand kan zomaar snel van de markt zijn. Neem vandaag nog contact op met de makelaar om een afspraak te maken.

Meer

Neem contact op

iQ Makelaars Kantoor Enschede
Danny Mulder
Roessinghsbleekweg 21,
7522 AH  Enschede

T  053 - 760 1600
E  Enschede@iQMakelaars.nl

Specificates

Bouw

  • Soort Woningen
  • Type Hoekwoning
  • Bouwjaar 1928

Algemeen

  • Beschikbaarheid In overleg

Energie

  • Energielabel E
  • Aanwezige isolatie Vloerisolatie

Indeling

  • Slaapkamers 2
  • Tuin Ja

Afmetingen

  • Woonoppervlakte 89 m²
  • Perceeloppervlakte 150 m²
  • Woninginhoud 355 m³
  • Tuin oppervlakte 40 m²
Meer

Afbeeldingen

 
 
 
 
 
 
 
 
 
 
 
 
 
 
 
 
 
 
 
 
 
 
 
 
 
 

Plattegrond

  Pand
  Pand
  Pand
  Pand
  Pand
  Pand
  Pand
  Pand

Vraag bezichtiging aan

Vergelijkbaar aanbod

Verkocht
ENSCHEDE
Van Riebeekstraat 97
   € 250.000,- k.k.
Bekijk pand
Verkocht
ENSCHEDE
Madame Curieplein 28
   € 259.500,- k.k.
Bekijk pand

Wat is jouw huis waard?

Gratis rapport iQ Makelaars Leadtool

Contact

iQ Makelaars Enschede
Roessinghsbleekweg 21,
7522 AH Enschede

E: enschede@iqmakelaars.nl
T: 053 - 760 16 00
Whatsapp +31 6 135 274 00

053 - 760 16 00

Volg ons

 

Onze beoordelingen

Onze klanten beoordelen ons met een 9,3 / 10. Elke klant met een unieke ervaring.

Bekijk al onze beoordelingen