iQ Makelaars Feedbackcompany
9.5 10
252 reviews
9,2 10
78 beoordelingen
 
ENSCHEDE, Spoordijkstraat 248
 

Spoordijkstraat 248 ENSCHEDE

Vraagprijs € 339.000,-
k.k.
  iQ Makelaars ENSCHEDE, Spoordijkstraat Verkocht OVB
Vraagprijs € 339.000,-
k.k.
Spoordijkstraat 248 ENSCHEDE
  • TypeTussenwoning
  • Woonoppervlakte98 m²
  • Perceelgrootte152 m²
  • Slaapkamers3
  • Aangeboden sinds12-03-2026
  • Beschikbaarheid In overleg
Vraag bezichtiging aan

Omschrijving

Een zeer kwalitatief hoogwaardig afgewerkte woning treft u hier aan. De woning is voorzien van een prachtige keuken en badkamer en beschikt over drie slaapkamers en een energielabel B. Kortom een woning waar u zo in kan en kwalitatief hoogwaardig is afgewerkt.

Ook de ligging is natuurlijk van belang. Met een blijvend groen uitzicht en de fietssnelweg naar Hengelo en de binnenstad om de hoek is er maar 1 conclusie mogelijk… deze woning wil je!

Vraag daarom vandaag nog een uitgebreide bezichtiging aan!

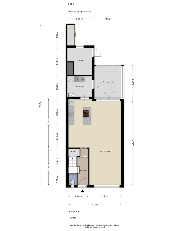
Indeling:
Begane grond: Laten we via de voordeur naar binnen gaan. We komen dan in een gang met de trapopgang, het toilet, de meterkast, de trapkast en de doorgang naar de woonkamer. Deze leefkamer heeft een grote uitbouw en een open keuken. De gekozen oplossing is meer dan mooi en zorgt er voor dat niet alleen de zitkamer, maar ook de grote eettafel voldoende ruimte hebben. De oorspronkelijk vrijstaande schuur is door de uitbouw gekoppeld aan de woning. Zo kon er naast een berging ook een mooie bijkeuken aan de keuken worden toegevoegd. Een bijkeuken met de aansluitingen voor de wasmachine, de droger en de Cv-ketel, maar ook bergruimte. Vanuit de bijkeuken bereiken we de achtertuin, onder de overkapping en dus droog. Deze overkapping, maar ook de gehele tuin ademt dezelfde mooie kwaliteit als de woning.

Tuin: De besloten tuin is keurig aangelegd en zoals we dat noemen: “onderhoudsvrij”. De schuttingen zijn goed, de minicontainers hebben een eigen overkapping en de overkapping grenzend aan de woning, geeft een hoogwaardige beschutting tegen onheil van boven, zodat er ook op regenachtige dagen van buiten genoten kan worden. Daarnaast is dit de laatste tuin, grenzend aan het pad achter de woningen. Dat betekent dat deze tuin effectief een meter langer is dat de tuin van nummer 250 en dat merk je.

1e verdieping: Boven treffen we een overloop, die toegang biedt tot alle overige ruimtes. Aan de voorzijde de hoofdslaapkamer en de kleinere kinderkamer. Aan de achterzijde ligt een ruime derde slaapkamer en de vergrote badkamer. Vergroot, doordat niet alleen de overloopkast is toegevoegd, maar ook doordat in de naastgelegen slaapkamer de deur is verplaatst. Zo kon er in de badkamer een grote douchehoek ontstaan, naast het tweede toilet, kastruimte en de brede wastafel.

2e verdieping: De vlizotrap voert je naar de zolderverdieping, zonder echte stahoogte, dus ideaal voor het opslaan van zaken die je niet wilt weggooien, maar ook niet in het zicht wilt hebben.

Bijzonderheden:
- Voorzien van een heel mooi B energielabel.
- Door uitbouw vergrote woonkamer met openslaande tuindeuren.
- Fraaie en degelijke overkapping grenzend aan de woonkamer.
- Mooie, moderne en lichte keuken met apparatuur, een groot werkblad en een kookeiland.
- Deze badkamer werd vergroot en beschikt o.a. over een tweede toilet en een grote douchehoek.
- Voorzien van kunststof kozijnen met isolatieglas.
- Rolluiken geïntegreerd in de kozijnen.
- Aan de voorzijde voorzien van een tiental zonnepanelen.
- Verwarming middels een eigendom Intergas Hre-combiketel uit 2023.
- Centrale ligging tussen universiteit en stadscentrum.
- Slechts enkele meters van de fietssnelweg richting Hengelo en het centrum.
- Perceeloppervlak: ca.152 m².
- Gebruiksoppervlak wonen: ca. 98 m².
- Overige inpandige ruimte: ca.15 m².
- Gebouw gebonden buitenruimte: ca.10 m².
- Bruto inhoud woning: ca. 397 m³.
- Bouwjaar: 1967.

Meer

Neem contact op

iQ Makelaars Kantoor Enschede
Danny Mulder
Roessinghsbleekweg 21,
7522 AH  Enschede

T  053 - 760 1600
E  Enschede@iQMakelaars.nl

Specificates

Bouw

  • Soort Woningen
  • Type Tussenwoning
  • Bouwjaar 1967

Algemeen

  • Beschikbaarheid In overleg

Energie

  • Energielabel B
  • CV-ketel Combi
  • CV-ketel eigendom Ja
  • CV-ketel brandstof Gas
  • CV-ketel bouwjaar 2023
  • CV-ketel warmwater Ja
  • Aanwezige isolatie Dakisolatie, muurisolatie, glasisolatie

Indeling

  • Slaapkamers 3
  • Tuin Ja
  • Tuin ligging Noordoost

Afmetingen

  • Woonoppervlakte 98 m²
  • Perceeloppervlakte 152 m²
  • Woninginhoud 397 m³
  • Tuin oppervlakte 60 m²

Voorziening

  • Zonnepanelen Ja
Meer

Afbeeldingen

 
 
 
 
 
 
 
 
 
 
 
 
 
 
 
 
 
 
 
 
 
 
 
 
 
 
 
 
 
 
 

Plattegrond

  Pand
  Pand
  Pand
  Pand
  Pand
  Pand

Vraag bezichtiging aan

Wat is jouw huis waard?

Gratis rapport iQ Makelaars Leadtool

Contact

iQ Makelaars Enschede
Roessinghsbleekweg 21,
7522 AH Enschede

E: enschede@iqmakelaars.nl
T: 053 - 760 16 00
Whatsapp +31 6 135 274 00

053 - 760 16 00

Volg ons

 

Onze beoordelingen

Onze klanten beoordelen ons met een 9,3 / 10. Elke klant met een unieke ervaring.

Bekijk al onze beoordelingen