iQ Makelaars Feedbackcompany
9.5 10
252 reviews
9,2 10
78 beoordelingen
 
HENGELO, Beukweg 92 A
 

Beukweg 92 A HENGELO

Vraagprijs € 259.500,-
k.k.
  iQ Makelaars HENGELO, Beukweg Verkocht
Vraagprijs € 259.500,-
k.k.
Beukweg 92 A HENGELO
  • TypeBenedenwoning
  • Woonoppervlakte74 m²
  • Slaapkamers1
  • Aangeboden sinds23-03-2023
  • Beschikbaarheid In overleg
Vraag bezichtiging aan

Omschrijving

Comfortabel wonen in een karakteristiek authentiek pand met het gemak en de luxe van alle hedendaagse voorzieningen gecombineerd met een moderne industriële afwerking, dat kan in dit unieke kleinschalige appartementencomplex!
De voormalige monumentale "Beuckschool" is getransformeerd tot een sfeervol appartementencomplex.
Hier bevindt zich dit royale 1-kamer loft appartement met eigen tuin, berging en eigen parkeerplaats op een afgesloten terrein. De centrale ligging nabij het winkelcentrum, openbaar vervoer, diverse (basis)scholen en het centrum van Hengelo is ook zeker een groot voordeel.

Het klinkt cliché maar om de sfeer van dit appartement te beleven, de hoge plafonds, lichtinval en industriële details, moet u dit appartement beslist van binnen zien.

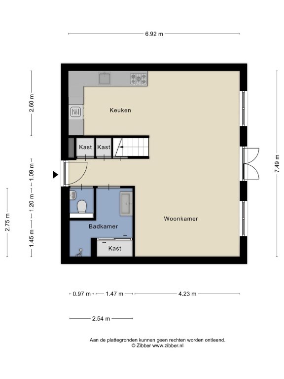
Indeling:
Entree, hal, toiletruimte met vrijhangend toilet en fonteintje, moderne badkamer met inloopdouche en wastafelmeubel. vaste kastenwand met opstelplaats voor wasmachine-/ en droger, woonkamer met fraaie hoge plafonds trap naar de verdieping en toegang tot de masterbedroom, moderne open keuken voorzien van diverse apparatuur.

Bijzonderheden:
* Bouwjaar 1900;
* In 2016 is de voormalige Beuckschool geheel verbouwd tot appartementen / lofts;
* Woonoppervlakte 74 m²;
* Volledig geïsoleerd.
* Energielabel A
* Monumentaal pand;
* Verzorgde entree met trappenhuis;
* Gehele appartement is voorzien van aluminium kozijnen met HR++ glas;
* Moderne keuken v.v. oven, 5-pits gaskookplaat, afzuigkap, vaatwasser en koelkast;
* Warm water en verwarming middels cv-combiketel, merk: Remeha, bouwjaar 2016, eigendom;
* VvE-bijdrage € 97,48,- per maand;

Meer

Neem contact op

iQ Makelaars Kantoor Almelo
Danny Mulder
Twentepoort Oost 34
7609 RG Almelo

T  0546 - 305 301
E  Almelo@iQMakelaars.nl

Specificates

Bouw

  • Soort Woningen
  • Type Benedenwoning
  • Bouwjaar 1900

Algemeen

  • Beschikbaarheid In overleg

Energie

  • Energielabel A
  • CV-ketel Combi
  • CV-ketel eigendom Ja
  • CV-ketel brandstof Gas
  • CV-ketel bouwjaar 2016
  • CV-ketel warmwater Ja
  • Aanwezige isolatie Dakisolatie, muurisolatie, vloerisolatie

Indeling

  • Slaapkamers 1
  • Tuin Ja
  • Tuin ligging West

Voorziening

  • Parkeerplaats Ja

Afmetingen

  • Woonoppervlakte 74 m²
  • Woninginhoud 324 m³
  • Tuin oppervlakte 30 m²
Meer

Afbeeldingen

 
 
 
 
 
 
 
 
 
 
 
 
 
 
 
 
 
 
 
 
 
 
 
 
 
 
 
 

Plattegrond

  Pand
  Pand
  Pand
  Pand
  Pand
  Pand

Vraag bezichtiging aan

Vergelijkbaar aanbod

Verkocht
HENGELO
Lindenweg 25
   € 260.000,- k.k.
Bekijk pand
Verkocht
HENGELO
Willy Albertistraat 13
   € 269.500,- k.k.
Bekijk pand

Wat is jouw huis waard?

Gratis rapport iQ Makelaars Leadtool

Contact

iQ Makelaars Enschede
Roessinghsbleekweg 21,
7522 AH Enschede

E: enschede@iqmakelaars.nl
T: 053 - 760 16 00
Whatsapp +31 6 135 274 00

053 - 760 16 00

Volg ons

 

Onze beoordelingen

Onze klanten beoordelen ons met een 9,3 / 10. Elke klant met een unieke ervaring.

Bekijk al onze beoordelingen