iQ Makelaars Feedbackcompany
9.5 10
252 reviews
9,2 10
78 beoordelingen
 
HENGELO, Rudolfstraat 37
 

Rudolfstraat 37 HENGELO

€ 350.000,-
k.k.
  iQ Makelaars HENGELO, Rudolfstraat Verkocht
€ 350.000,-
k.k.
Rudolfstraat 37 HENGELO
  • TypeVrijstaand
  • Woonoppervlakte97 m²
  • Perceelgrootte206 m²
  • Slaapkamers3
  • GarageJa
  • Aangeboden sinds18-11-2021
  • Beschikbaarheid In overleg
Vraag bezichtiging aan

Omschrijving

Volledig gemoderniseerde (2021) instapklare vrijstaande woning!

Gelegen in de centraal gelegen wijk "Berflo Es" staat deze vrijstaande woning met eigen oprit voor 2 auto's en garage. De woning ligt aan een rustige weg, is gesitueerd op fietsafstand van het centrum van Hengelo en ligt op loopafstand van diverse voorzieningen, zoals scholen, buurt- en speeltuinvereniging, een compleet winkelcentrum, huisartsenpost en verschillende sportlocaties.

Indeling:
Begane grond: via de entree komt u de woning binnen met een lichte hal met nieuw toilet en meterkast. Vervolgens komt u de L-vormige woonkamer met trapkast en grote raampartijen aan de voor en achterzijde van de
woonkamer. Via de woonkamer heeft u toegang tot de achtertuin. Aan de achterzijde zit een nieuwe keuken in lichte kleursamenstelling die is uitgerust met diverse inbouwapparatuur. Vanuit de keuken bereikt u de achter hal die toegang heeft tot de tuin en de ruime garage.

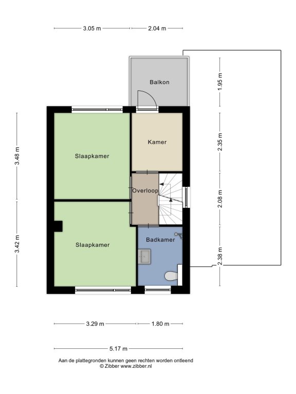
Eerste verdieping: De trap komt uit op de overloop met drie instapklare slaapkamers en een nieuwe badkamer. De badkamer beschikt over een fraai wastafelmeubel, toilet en douche.

Tweede verdieping, te bereiken via een vaste trap: Op de tweede verdieping bevindt zich een ruime zolder met de mogelijkheid voor een extra (slaap)kamer.

Tuin: De achtertuin is gesitueerd op het Noorden, is gemakkelijk in onderhoud en via achterom te bereiken. De oprit met parkeerplaats grenst aan de ruime aangebouwde garage die is voorzien van water en elektra.

Bijzonderheden:

- Bouwjaar 1987
- Woonoppervlakte 97 m2
- Kaveloppervlakte bedraagt 206 m2
- Verwarming en warm water d.m.v. Intergas HR C.V.-ketel (2019, eigendom)
- eigen oprit met ruimte voor een 2 auto's

Meer

Neem contact op

iQ Makelaars Kantoor Almelo
Martin Grave
Twentepoort Oost 34
7609 RG Almelo

T  0546 - 305 301
E  Almelo@iQMakelaars.nl

Specificates

Bouw

  • Soort Woningen
  • Type Vrijstaand
  • Bouwjaar 1987

Algemeen

  • Beschikbaarheid In overleg

Indeling

  • Slaapkamers 3
  • Garage Ja
  • Tuin Ja
  • Tuin ligging Noord

Voorziening

  • Parkeerplaats Ja

Afmetingen

  • Woonoppervlakte 97 m²
  • Perceeloppervlakte 206 m²
  • Woninginhoud 424 m³

Energie

  • CV-ketel Combi
  • CV-ketel eigendom Ja
  • CV-ketel brandstof Gas
  • CV-ketel bouwjaar 2019
  • CV-ketel warmwater Ja
  • Aanwezige isolatie Dakisolatie, glasisolatie
Meer

Afbeeldingen

 
 
 
 
 
 
 
 
 
 
 
 
 
 
 
 
 
 
 
 
 
 
 
 
 
 
 
 
 
 
 

Plattegrond

  Pand
  Pand
  Pand
  Pand
  Pand
  Pand

Vraag bezichtiging aan

Wat is jouw huis waard?

Gratis rapport iQ Makelaars Leadtool

Contact

iQ Makelaars Enschede
Roessinghsbleekweg 21,
7522 AH Enschede

E: enschede@iqmakelaars.nl
T: 053 - 760 16 00
Whatsapp +31 6 135 274 00

053 - 760 16 00

Volg ons

 

Onze beoordelingen

Onze klanten beoordelen ons met een 9,3 / 10. Elke klant met een unieke ervaring.

Bekijk al onze beoordelingen