iQ Makelaars Feedbackcompany
9.5 10
252 reviews
9,2 10
78 beoordelingen
 
VRIEZENVEEN, De Patrijs 43
 

De Patrijs 43 VRIEZENVEEN

Vraagprijs € 330.000,-
k.k.
Vraagprijs € 330.000,-
k.k.
De Patrijs 43 VRIEZENVEEN
  • Type2-onder-1-kap
  • Woonoppervlakte141 m²
  • Perceelgrootte255 m²
  • Slaapkamers4
  • GarageJa
  • Aangeboden sinds21-01-2022
  • Beschikbaarheid In overleg
Vraag bezichtiging aan

Omschrijving

Wij bieden u in een unieke, kindvriendelijk en rustige buurt deze ruime 2-onder-1 kap woning grotendeels voorzien van kunststof kozijnen en 12 zonnepanelen aan. Deze prachtige woning met vier slaapkamers is gelegen aan een hofje(met een speeltuin op 50 meter) waar alleen bestemmingsverkeer komt. Kortom deze woning is ideaal voor starters en gezinnen.

De woning is goed bereikbaar met veel voorzieningen in de buurt en meer dan voldoende parkeerruimte. Gesitueerd op loopafstand van een basisschool en een bushalte. Het treinstation zit op 2 kilometer afstand. Daarnaast is de dichtstbijzijnde uitvalsweg slechts 3 minuten rijden.

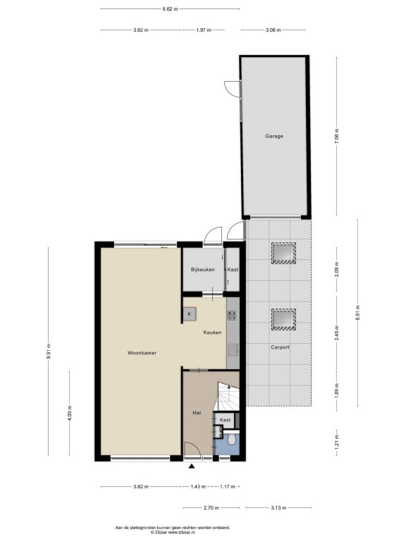
Indeling:
Begane grond:
Hal/entree, toilet trapopgang en toegang tot keuken en woonkamer. Keuken is voorzien van alle inbouwapparatuur met doorgang naar bijkeuken. Zeer ruime woonkamer met toegang middels een schuifpui naar de tuin. De tuin is gelegen op het zuid/westen en is voorzien van een overkapping.

1e verdieping:
Overloop die toegang biedt tot drie slaapkamers waarvan twee met inbouwkast en een badkamer voorzien van toilet, wastafel en douchehoek.

2e verdieping:
Zeer ruime zolderverdieping voorzien van een ruimte met wasmachine- en drogeraansluitingen met ruime overloop en een vierde ruime slaapkamer voorzien van dakkapel uit 2018

Bijzonderheden:
- Bouwjaar 1974.
- Perceel 255 m².
- Woonoppervlakte 141 m²
- Garage 23 m²
- Inhoud circa 505 m³.
- Verwarming middels cv- combiketel (Remeha 2020)
- Grotendeels voorzien van kunststof kozijnen
- Voorzien van 12 zonnepanelen.
- Garage deur en kozijn zijn in 2018 vervangen.(

Wij zijn de makelaar van verkoper. Wij adviseren je om je eigen makelaar mee te nemen voor jouw belangenbehartiging bij de aankoop van je toekomstige huis!

Meer

Neem contact op

iQ Makelaars Kantoor Almelo
Danny Mulder
Twentepoort Oost 34
7609 RG Almelo

T  0546 - 305 301
E  Almelo@iQMakelaars.nl

Specificates

Bouw

  • Soort Woningen
  • Type 2-onder-1-kap
  • Bouwjaar 1974

Algemeen

  • Beschikbaarheid In overleg

Indeling

  • Slaapkamers 4
  • Garage Ja
  • Tuin Ja
  • Tuin ligging Zuidwest

Voorziening

  • Parkeerplaats Ja
  • Zonnepanelen Ja

Afmetingen

  • Woonoppervlakte 141 m²
  • Perceeloppervlakte 255 m²
  • Woninginhoud 505 m³
  • Tuin oppervlakte 100 m²

Energie

  • CV-ketel Combi
  • CV-ketel eigendom Ja
  • CV-ketel brandstof Gas
  • CV-ketel bouwjaar 2020
  • CV-ketel warmwater Ja
  • Aanwezige isolatie Dakisolatie, glasisolatie
Meer

Afbeeldingen

 
 
 
 
 
 
 
 
 
 
 
 
 
 
 
 
 
 
 
 
 
 
 
 
 
 
 
 
 
 
 
 
 
 
 
 

Plattegrond

  Pand
  Pand
  Pand
  Pand
  Pand
  Pand
  Pand
  Pand

Documenten

Vraag bezichtiging aan

Wat is jouw huis waard?

Gratis rapport iQ Makelaars Leadtool

Contact

iQ Makelaars Enschede
Roessinghsbleekweg 21,
7522 AH Enschede

E: enschede@iqmakelaars.nl
T: 053 - 760 16 00
Whatsapp +31 6 135 274 00

053 - 760 16 00

Volg ons

 

Onze beoordelingen

Onze klanten beoordelen ons met een 9,3 / 10. Elke klant met een unieke ervaring.

Bekijk al onze beoordelingen