Wat een fijne woning is dit! Heerlijk rustig gelegen in de kindvriendelijke woonwijk de Windmolenbroek, Ruime ruime twee onder een kap woning met veel grond en mogelijkheid tot het realiseren van slapen en baden op begane grond. De ruimte naast de woning is ideaal voor een caravan/camper of dergelijke. 
 
Fraai gelegen op een mooie plek aan de rand van de wijk, vrij en met veel groen aan de achterzijde, op een paar minuten van de uitvalswegen A1/A35, diverse basisscholen en het winkelcentrum.
 
Indeling:
Begane grond:
Entree met hal, meterkast, toilet en trapopgang. Doorgang naar ruime woonkamer en open keuken welke is voorzien van een inductiekookplaat, oven, koelkast en wasemkap. Deur met toegang tot de ruime tuin op het noordwesten welke heerlijke vrijheid aan de achterzijde biedt.
 
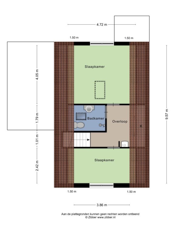
Eerste verdieping:
Overloop met twee ruime slaapkamers. Badkamer voorzien van een douche, toilet en wastafel. Middels vlizotrap te bereiken opbergzolder.
 
Bijzonderheden
- Bouwjaar 1993, 
- Woonoppervlakte 97 m², 
- Inhoud 421 m³
- Perceeloppervlakte van 318 m²;
- Warm water en verwarming middels een Remeha Combiketel, bouwjaar 2009, eigendom;
- Ideaal gelegen met diverse voorzieningen in de buurt: Basisscholen, uitvalswegen, winkelcentrum en groen in het buitengebied;
- Aanvaarding in overleg:
 
					iQ Makelaars Kantoor Almelo
					 
											Danny Mulder
					
					Twentepoort Oost 34
					
					7609 RG Almelo
				
 T  0546 - 305 301
															
 E  Almelo@iQMakelaars.nl
									
iQ Makelaars Enschede
Roessinghsbleekweg 21,
7522 AH Enschede
E: enschede@iqmakelaars.nl
T: 053 - 760 16 00 +31 6 135 274 00
 +31 6 135 274 00
Over ons
Overig
Volg ons
Onze klanten beoordelen ons met een 9,3 / 10. Elke klant met een unieke ervaring.