iQ Makelaars Feedbackcompany
9.5 10
252 reviews
9,2 10
78 beoordelingen
 
ALMELO, Singraven 31
 

Singraven 31 ALMELO

Vraagprijs € 269.500,-
k.k.
Vraagprijs € 269.500,-
k.k.
Singraven 31 ALMELO
  • TypeTussenwoning
  • Woonoppervlakte132 m²
  • Perceelgrootte135 m²
  • Slaapkamers3
  • Aangeboden sinds17-08-2023
  • Beschikbaarheid In overleg
Vraag bezichtiging aan

Omschrijving

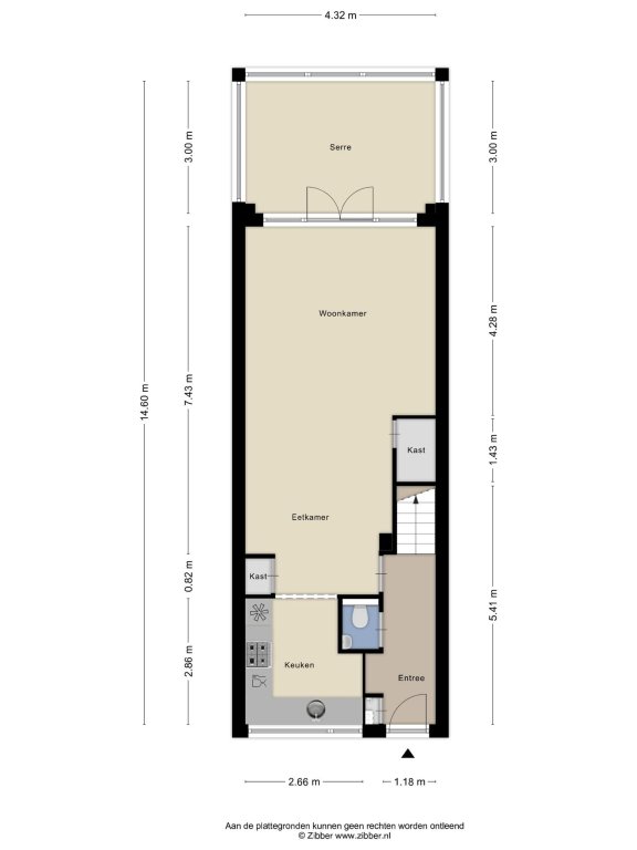
Een kant en klare tussenwoning (met 8 zonnepanelen) die goed is onderhouden en gunstig is gelegen. Deze woning bevindt zich in een vredig hofje en beschikt over een eigen parkeerplaats voor de deur. De achtertuin is met zorg aangelegd en voorzien van een sfeervolle overkapping.

INDELING:
Begane grond: Bij binnenkomst treft u de hal/entree, een toilet en de trapopgang aan. De ruime open keuken is voorzien van inductie kookplaat, afzuigkap, koelkast en vaatwasser. De ruime lichte woonkamer is door middel van openslaande deur verbonden aan een lichte serre en ruime tuin op het zuiden met overkapping

1e verdieping: Op de eerste verdieping vindt u een overloop, drie slaapkamers en een badkamer voorzien van inloopdouche, toilet en wastafelmeubel. De eerste verdieping is voorzien van een airco

2e verdieping: De zolder biedt ruimte voor witgoedapparatuur en de cv-opstelling, met mogelijkheid om hier een vierde slaapkamer te creƫren en extra opbergruimte

KENMERKEN:
-Bouwjaar: 1974.
-Inhoud:421m2.
-8 Zonnepanelen(2021)
-Fraai aangelegde tuin.
-Stenen schuurtje aan de voorzijde.
-Een woning die klaar is om direct te betrekken!

Meer

Neem contact op

iQ Makelaars Kantoor Almelo
Danny Mulder
Twentepoort Oost 34
7609 RG Almelo

T  0546 - 305 301
E  Almelo@iQMakelaars.nl

Specificates

Bouw

  • Soort Woningen
  • Type Tussenwoning
  • Bouwjaar 1974

Algemeen

  • Beschikbaarheid In overleg

Energie

  • Energielabel A
  • CV-ketel Combi
  • CV-ketel eigendom Ja
  • CV-ketel brandstof Gas
  • CV-ketel bouwjaar 2018
  • CV-ketel warmwater Ja
  • Aanwezige isolatie Glasisolatie

Indeling

  • Slaapkamers 3
  • Tuin Ja
  • Tuin ligging Zuid

Voorziening

  • Parkeerplaats Ja
  • Zonnepanelen Ja

Afmetingen

  • Woonoppervlakte 132 m²
  • Perceeloppervlakte 135 m²
  • Woninginhoud 421 m³
Meer

Afbeeldingen

 
 
 
 
 
 
 
 
 
 
 
 
 
 
 
 
 
 
 
 
 
 
 
 
 
 
 
 
 
 
 
 
 
 

Plattegrond

  Pand
  Pand
  Pand
  Pand
  Pand
  Pand
  Pand
  Pand
  Pand
  Pand

Vraag bezichtiging aan

Vergelijkbaar aanbod

Verkocht
ALMELO
Goossenmaatsweg 74
   € 269.500,- k.k.
Bekijk pand
Verkocht
ALMELO
De Nachtpauw 2 a
   € 275.000,- k.k.
Bekijk pand

Wat is jouw huis waard?

Gratis rapport iQ Makelaars Leadtool

Contact

iQ Makelaars Enschede
Roessinghsbleekweg 21,
7522 AH Enschede

E: enschede@iqmakelaars.nl
T: 053 - 760 16 00
Whatsapp +31 6 135 274 00

053 - 760 16 00

Volg ons

 

Onze beoordelingen

Onze klanten beoordelen ons met een 9,3 / 10. Elke klant met een unieke ervaring.

Bekijk al onze beoordelingen