iQ Makelaars Feedbackcompany
9.5 10
252 reviews
9,2 10
78 beoordelingen
 
ENSCHEDE, Brinkstraat 434
 

Brinkstraat 434 ENSCHEDE

€ 380.000,-
k.k.
€ 380.000,-
k.k.
Brinkstraat 434 ENSCHEDE
  • Type2-onder-1-kap
  • Woonoppervlakte131 m²
  • Perceelgrootte271 m²
  • Slaapkamers5
  • Aangeboden sinds24-08-2022
  • Beschikbaarheid In overleg
Vraag bezichtiging aan

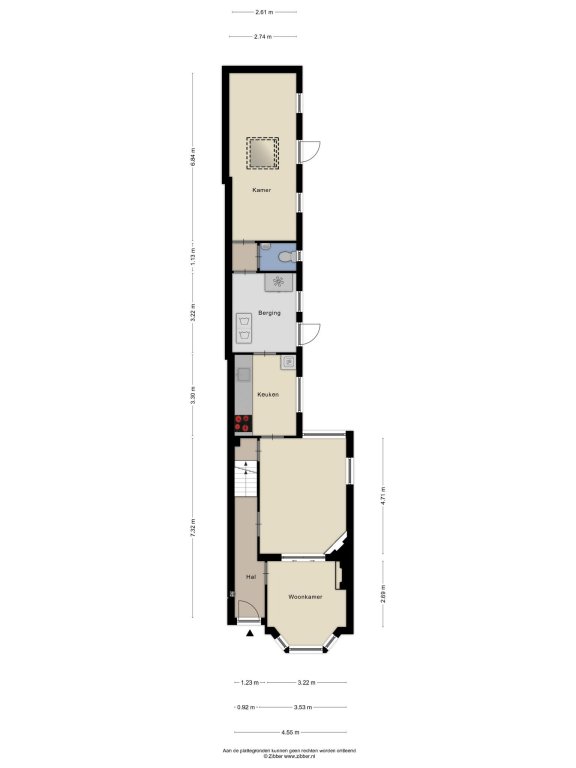
Omschrijving

In prima staat van onderhoud en op fraaie wijze uitgebouwde jaren '30 erkerwoning welke is gelegen in de geliefde woonwijk Het Hogeland. Deze geweldige woning is voorzien van authentieke details die dateren uit de bouwperiode, biedt veel leef-/woonruimte, heeft een nette inbouwkeuken, een prachtige badkamer op de 1e verdieping en een mooie diepe tuin.

Indeling:
Begane grond:
Entree, stijlvolle hal met originele vloertegels, fraaie trapopgang. Voorkamer met erker, glas in lood ramen en originele schouw. Middels suite deuren is de achterkamer toegankelijk, deze is net zoals de voorkamer voorzien van een originele schouw en een prachtige houten vloer. Gesloten keuken met fraaie inbouwkeuken die voorzien is van diverse inbouwapparatuur. Aansluitend de ruime bijkeuken alwaar zich onder andere de wasmachine aansluiting en de CV ketel bevinden. Vervolgens het ruime toilet en multifunctionele kamer die momenteel gebruikt wordt als eetkamer maar ook geschikt is voor werk-, speel, of praktijkruimte.

1e verdieping:
Overloop met vaste kast en toegang tot een klein dakterras, twee slaapkamers waarvan een met vaste kast. Prachtige ruime badkamer die voorzien is van een ligbad, 2e toilet, douchecabine, wastafel en designradiator.

2e verdieping
Bereikbaar d.m.v. een vaste trap, voorzolder met dakkapel, werk/studeer/slaapkamer, ruime slaapkamer met dak-, en zijvenster.

In de zeer diepe achtertuin bevinden zich meerdere zitjes alsmede een vrijstaande berging die meerdere gebruiksmogelijkheden biedt.

Bijzonderheden:
- Bouwjaar 1937, perceel 271 m², woonoppervlakte 131 m².
- Gelegen op 2 min. loopafstand van het buitengebied en 5 min. fietsen van het centrum.
- De door zijn enorme diepte zonnige tuin is op het westen gelegen.
- Centrale verwarming en warm water middels een HR ketel uit 2019 (huur).

Meer

Neem contact op

iQ Makelaars Kantoor Enschede
Martin Grave
Roessinghsbleekweg 21,
7522 AH  Enschede

T  053 - 760 1600
E  Enschede@iQMakelaars.nl

Specificates

Bouw

  • Soort Woningen
  • Type 2-onder-1-kap
  • Bouwjaar 1937

Algemeen

  • Beschikbaarheid In overleg

Energie

  • Energielabel C
  • CV-ketel Combi
  • CV-ketel brandstof Gas
  • CV-ketel bouwjaar 2019
  • CV-ketel warmwater Ja
  • Aanwezige isolatie Dakisolatie, muurisolatie, vloerisolatie, glasisolatie

Indeling

  • Slaapkamers 5
  • Tuin Ja
  • Tuin ligging West

Afmetingen

  • Woonoppervlakte 131 m²
  • Perceeloppervlakte 271 m²
  • Woninginhoud 504 m³
Meer

Afbeeldingen

 
 
 
 
 
 
 
 
 
 
 
 
 
 
 
 
 
 
 
 
 
 
 
 
 
 
 
 
 
 
 
 
 
 
 
 
 
 

Plattegrond

  Pand
  Pand
  Pand
  Pand
  Pand
  Pand
  Pand
  Pand
  Pand
  Pand
  Pand
  Pand
  Pand
  Pand

Vraag bezichtiging aan

Vergelijkbaar aanbod

Verkocht
ENSCHEDE
Kottendijk 175
   € 375.000,- k.k.
Bekijk pand
Verkocht
ENSCHEDE
Voortsweg 303
   € 389.000,- k.k.
Bekijk pand

Wat is jouw huis waard?

Gratis rapport iQ Makelaars Leadtool

Contact

iQ Makelaars Enschede
Roessinghsbleekweg 21,
7522 AH Enschede

E: enschede@iqmakelaars.nl
T: 053 - 760 16 00
Whatsapp +31 6 135 274 00

053 - 760 16 00

Volg ons

 

Onze beoordelingen

Onze klanten beoordelen ons met een 9,3 / 10. Elke klant met een unieke ervaring.

Bekijk al onze beoordelingen