iQ Makelaars Feedbackcompany
9.5 10
252 reviews
9,2 10
78 beoordelingen
 
ENSCHEDE, Voortsweg 303
 

Voortsweg 303 ENSCHEDE

Vraagprijs € 389.000,-
k.k.
Vraagprijs € 389.000,-
k.k.
Voortsweg 303 ENSCHEDE
  • TypeTussenwoning
  • Woonoppervlakte134 m²
  • Perceelgrootte162 m²
  • Slaapkamers4
  • GarageJa
  • Aangeboden sinds02-04-2026
  • Beschikbaarheid In overleg
Vraag bezichtiging aan

Omschrijving

Zeer bijzondere split-level woning met een heerlijke tuin op het zuiden. De woning is voorzien van drie slaapkamers, een garage, kunststof kozijnen, gedeeltelijk rolluiken, 8 zonnepanelen en airco's.

De kozijnen in de buitengevels zijn in 2011 vervangen door kunststof met isolerende beglazing, waarbij de slaapkamers tevens voorzien zijn van rolluiken.

Gelegen aan de rand van woonwijk Deppenbroek, nabij het Amelinksbos. Deze ruime eengezinswoning is zeer verrassend ingedeeld. De woning is zeer goed onderhouden en gemoderniseerd. De woning is voorzien van een vide waardoor er een extra ruimte boven de woonkamer is gecreëerd.

De verrassing van de woning is dat ze een splitlevel herbergt, waardoor er een speelse, functionele en niet alledaagse indeling is. Daarnaast is de woning gunstig gelegen ten opzichte van het stadscentrum, cultureel Roombeek, ontsluiting richting de snelweg A1 en het groene buitengebied.

Bent u op zoek naar ruimte, een garage en op een locatie in de nabijheid van winkels, scholen en sport-/speelfaciliteiten? Maak dan heel snel een afspraak om deze woning te bezichtigen.

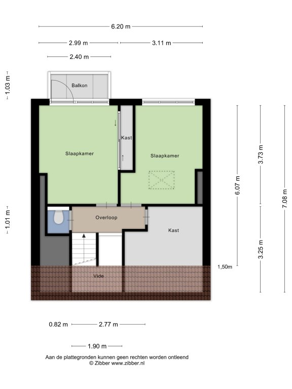
De indeling van de woning is als volgt:

Hal/entree met aan de linkerzijde toiletruimte en aan de rechterzijde de keuken, deze is voorzien van diverse inbouwapparatuur en doorkijk naar de woonkamer. Via een trapje naar beneden (souterrain) bereikt u de sfeervolle ruime woonkamer met openhaard In de bijkeuken bevinden zich aansluitingen voor wasmachine/droger, extra kraan en een net werkblad + extra opbergruimte. Vanuit de woonkamer komt u in de mooi aangelegde achtertuin met een ruime tuinkamer en terras onder het balkon.

Via de hal op de begane grond gaat u een verdieping omhoog alwaar u de eetkamer bereikt welke in directe verbinding staat met de keuken en woonkamer d.m.v. een vide. De eetkamer geeft tevens toegang tot het dakterras.

Daarna volgt wederom een trapje naar boven met een tussenniveau met een slaapkamer en de badkamer. Nogmaals een trapje omhoog treft u een 2e toiletruimte, extra opbergruimte en nog eens 2 slaapkamers, waarvan 1 met balkon en inbouwkast. Boven de slaapkamers is er nog een vliering met bergruimte.

Bijzonderheden:
Garage aan achterzijde van de woning is bereikbaar via de achtergelegen toegangsweg.
Alle slaapkamers zijn v.v. handmatig bedienbare, geïntegreerde rolluiken.
8 zonnepanelen
Tuin op het zuiden met achterom en heel veel privacy.
Bouwjaar: 1966
Inhoud: 475 m3 Woonoppervlak: 134m²
Perceel: 162 m² (incl. garage)

Meer

Neem contact op

iQ Makelaars Kantoor Enschede
Danny Mulder
Roessinghsbleekweg 21,
7522 AH  Enschede

T  053 - 760 1600
E  Enschede@iQMakelaars.nl

Specificates

Bouw

  • Soort Woningen
  • Type Tussenwoning
  • Bouwjaar 1966

Algemeen

  • Beschikbaarheid In overleg

Energie

  • Energielabel B
  • CV-ketel hr
  • CV-ketel eigendom Ja
  • CV-ketel brandstof Gas
  • CV-ketel bouwjaar 2016
  • CV-ketel warmwater Ja
  • Aanwezige isolatie Dakisolatie, muurisolatie, vloerisolatie, glasisolatie

Indeling

  • Slaapkamers 4
  • Garage Ja
  • Tuin Ja
  • Tuin ligging Zuid

Afmetingen

  • Woonoppervlakte 134 m²
  • Perceeloppervlakte 162 m²
  • Woninginhoud 475 m³
  • Tuin oppervlakte 80 m²
Meer

Plattegrond

  Pand
  Pand
  Pand
  Pand
  Pand
  Pand
  Pand
  Pand
  Pand
  Pand
  Pand
  Pand

Vraag bezichtiging aan

Vergelijkbaar aanbod

Verkocht
ENSCHEDE
Piet Mondriaanstraat 46
   € 399.000,- k.k.
Bekijk pand
Verkocht
ENSCHEDE
Brinkstraat 434
   € 380.000,- k.k.
Bekijk pand
Verkocht
ENSCHEDE
Kamerlingh Onneslaan 45
   € 398.500,- k.k.
Bekijk pand

Wat is jouw huis waard?

Gratis rapport iQ Makelaars Leadtool

Contact

iQ Makelaars Enschede
Roessinghsbleekweg 21,
7522 AH Enschede

E: enschede@iqmakelaars.nl
T: 053 - 760 16 00
Whatsapp +31 6 135 274 00

053 - 760 16 00

Volg ons

 

Onze beoordelingen

Onze klanten beoordelen ons met een 9,3 / 10. Elke klant met een unieke ervaring.

Bekijk al onze beoordelingen